• 0 Dor.
  • 0 Bañ.
  • Casita
Quiero más info
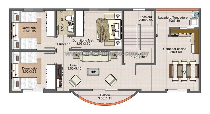
Tipología : Fina

Proyecto para construcción de Edificios de Departamentos . Tipologia Fina a construir de 364.13 m2. en Paraguay. Contactar por la referencia REF: 114 para solicitar contrucción.

Módulos
Ver Tipología